2026-04-14 11:26:32
发布者:中其类型:
眉山市老年养护院仁寿分院位于眉山市仁寿县临近城区核心区域,项目周边医疗资源便捷可达,距仁寿县中医院1.5km、社区卫生服务中心1.7km,可与周边医疗资源快速形成应急联动机制。该养护院由4栋多层建筑及1单层建筑构成。其中根据原有建筑设计使用功能,1号楼为运营服务用房,2号楼、3号楼为生活区用房,4号楼为行政接待用房。
本次通过对不同空间的使用功能,包括各楼栋的居住用房、公共活动区域、康复区、餐厅、护士站、卫生间、助浴间等,重点围绕适老化需求,开展平面布局优化、安全防护设计、舒适体验提升等工作。

Episode Ⅰ
空间布局系统性优化
(基于照护效率与需求优先级)
一、布局优化逻辑
设计以“功能齐全,安全便捷、照护高效”为核心,通过合理划分功能分区,实现不同照护等级老人的分类管理。同时强化公共空间与居住空间的关联性,缩短服务响应距离,提升照护效率与老人活动便利性。
二、布局优化思路
(一)2号楼生活区-助浴间
原建筑无专属助浴间,仅靠居室中简易淋浴区无法满足行动不便老人(如肢体退化、轮椅使用者)洗浴需求,影响卫生与舒适感。
本次优化首先考虑将左侧送餐电梯开门方向调整至公共过道(保留送餐功能),整合释放空间与周边闲置区域扩容,改造成面积≥6㎡的“老人洗浴+护理协助”的专属助浴间,填补功能空白,提升洗浴安全与舒适感。

(二)2号楼生活区-餐厅
为解决改造前餐厅位于通道角落、护士站难以兼顾就餐老人安全的问题,将餐厅与房间位置进行置换。优化后打开了餐厅、门厅及电梯厅的空间连接,视觉更开阔,便于护士站实时管控餐厅情况(实现无死角观察),同时缩短了尽端房间老人的行动距离,提升了通行效率。

优化前

优化后
(三)2号楼生活区-公共无障碍卫生间
减少原有公共卫生间数量,扩大单个卫生隔间面积至≥1.8×1.5m以增强空间感与舒适度;将笨重的平开门更换为净宽≥0.9m 的电动平移门,既方便老人进出,也降低门体开启难度。

(四)2号楼生活区-娱乐、康复活动空间
同时在2号楼、3号楼均设置有老人活动娱乐区域,康复区,为老人提供康复训练,提升自理能力。

康复区效果图

活动区效果图
Episode Ⅱ
舒适体验适老化设计
设计目标:以“适配生理特征、强化情感归属”为核心,通过空间细节设计提升老年人居住舒适度,减少环境适应成本,增强“家”的认同感。
一、入户设计
所有居室入户门尺寸保证净空满足大于900mm,保证轮椅通行,且门均结合柱体设置为内退式外开门,减少对走道的通行影响。在门口引入寻路装置,降低寻路难度,更能通过专属物件强化家的归属感,传递人文关怀。

寻路设置示意效果图
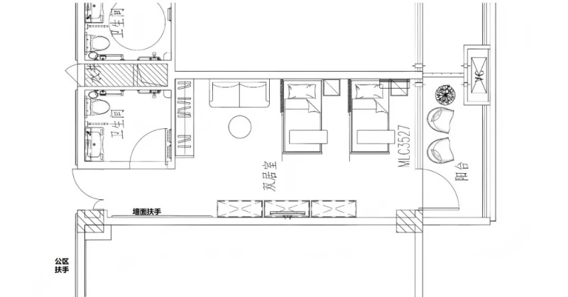
二、居室设计
居室布局前先与老人充分沟通,精准适配其日常生活习惯,进行空间分配与个性化布置。支持老人带入私人物并可自由摆放,强化居住的专属感与家的归属感。
考虑老年人手部力量减弱、弯腰踮脚困难等生理特点,采用推拉式柜门便于开启,门板可嵌入隐形扶手,方便老人开关门时借力支撑。 在衣柜分隔上应考虑便于老年人取放,同时考虑乘坐轮椅的老年人的操作高度,储物隔板可分为上中下三层,上层放置换季物品采用拉杆式或电动升降拉篮式,老人无需用力,轻轻下拉就可以取用上层物品;中层高度可以控制在800~1000mm,刚好适配老人站立时手臂的活动区域,无需弯腰或抬手。衣柜内部需安装感应灯带,开门或拉开抽屉时自动亮起,解决光线不足老人找衣服困难的问题。有了更多的储存空间,老年人的隐私也得以保障。

居室平面图

居室效果图

衣柜效果图

2号楼、3号楼居室实景图
三、阳台设计
所有居室均设置阳台,充分考虑老年人洗涤、晾晒、晒太阳、养护绿植等核心需求,提升居住舒适度,享受晚年时光。

阳台效果图
四、色彩搭配
养老院室内以米色、浅灰色、木纹等温暖柔和的色调为主,营造温馨居住氛围;2号楼居住区增加绿色、紫色、黄色等鲜艳色彩,结合标识系统区分不同照护等级,帮助失能、失智老人增强空间辨识度。

大厅效果图

大厅实景图

用餐、活动区效果图

用餐、活动区实景图
五、家具选择
老年人普遍存在肌肉力量减弱、关节灵活性下降、平衡能力欠佳等情况,设计重点围绕 “起身难、易摔倒、久坐累” 三大核心痛点展开。公共区域及户内桌椅,优先选用倒角圆润的实木材质,手感温润不冰手,避免磕碰受伤。配备软垫的座椅能缓冲重力冲击,减轻腰部负担。座椅需搭配高度适中的靠背与扶手,既保障腰部支撑,又方便借力起身,提升使用安全性与舒适度。
茶几的高度宜500~550mm,方便老人扶着站起来。边几的高度宜为与沙发、座椅的高度一致450~550mm,方便拿取物品。 如果是需轮椅辅助的老年人,在沙发旁边需预留放置轮椅的尺寸。


六、灯具照明
结合老年人视力退化的生理特点(如对比度敏感度下降、怕眩光、视物模糊),养护院的灯光设计应优先采用暖色光源,兼顾视觉温暖感与视力适配性。优选色温 3000K-3500K的无频闪LED灯,避免3000K以下过暖黄光(易显昏暗,加重视物模糊),既保留温暖感,又能保证基础视物清晰度。
同时按区域差异化设置照度,采用“主灯 + 辅助灯”组合式照明,主灯选用漫射型吸顶灯减少直射眩光,走廊与过道搭配低高度防眩光地脚灯或嵌入式灯带,床头、座椅旁设置可调节亮度的局部灯具,且在区域过渡处实现灯光亮度渐变,规避明暗突变带来的眩晕风险。
灯光开关选用大按钮、高对比度设计(如白色按钮 + 黑色标识),安装高度1.1-1.3m(方便坐姿、站姿操作),部分区域可搭配语音控制或遥控开关。在入户门处需要设置一键式控制的开关,老人进出时开关灯更加便捷。
